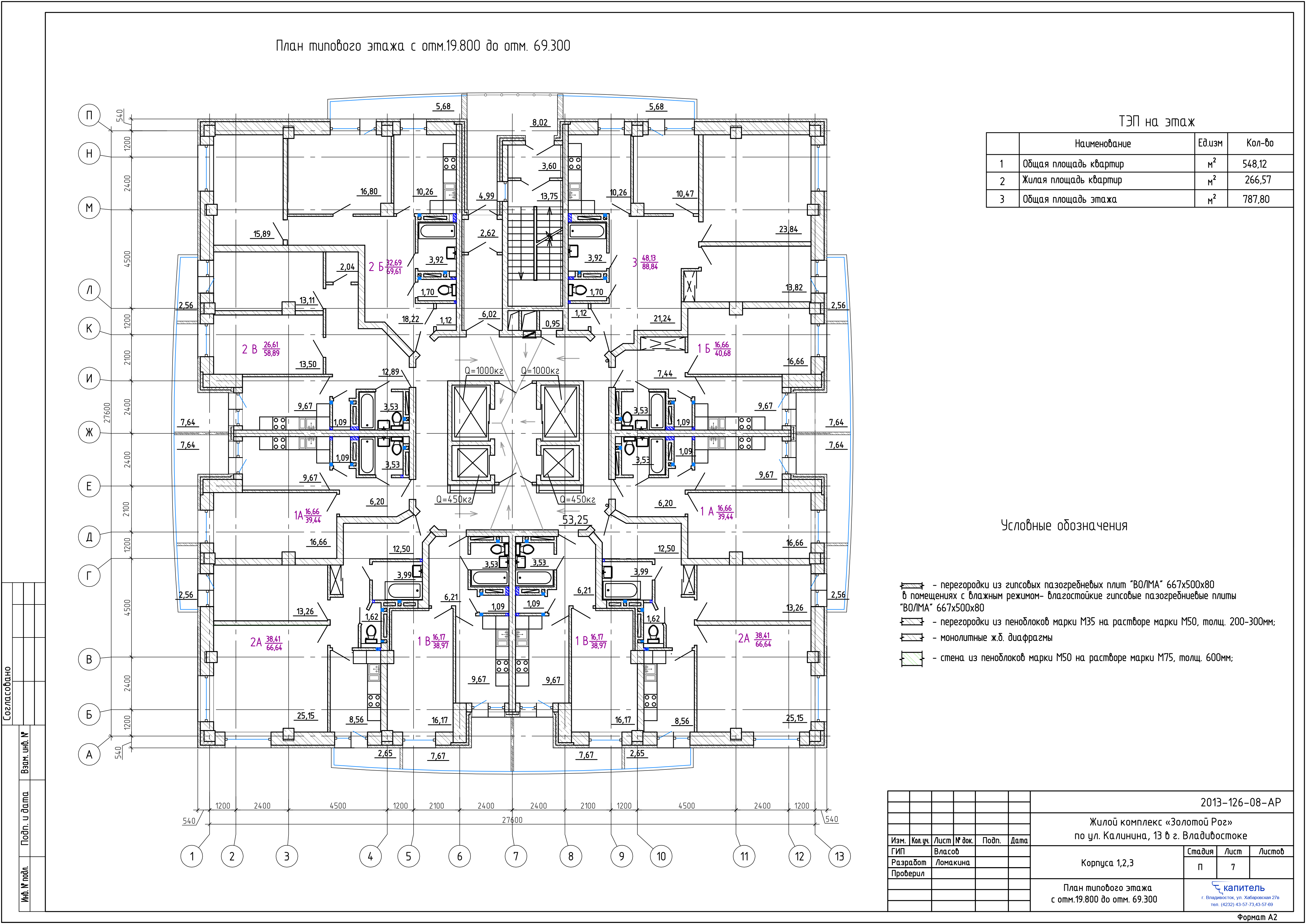
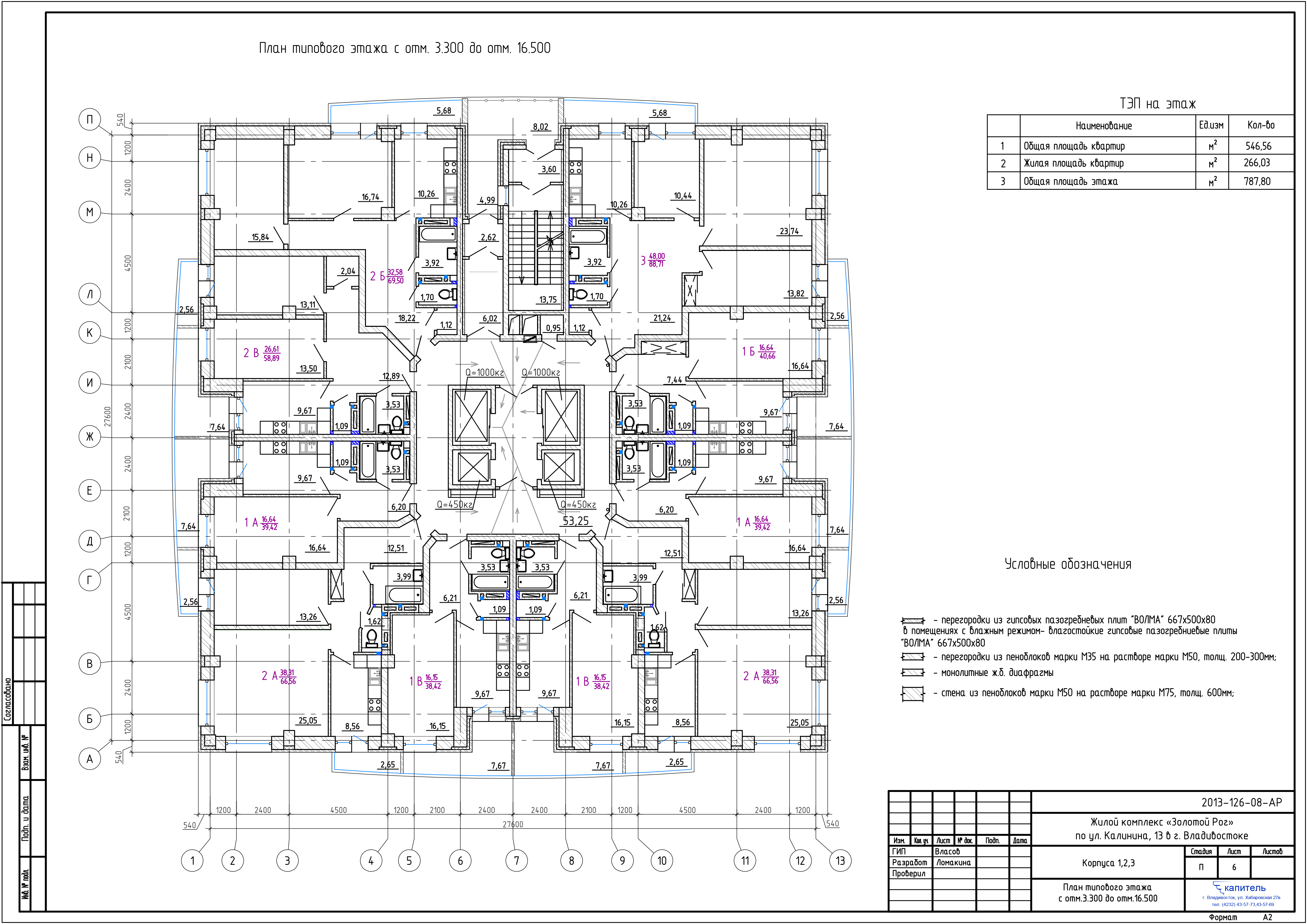
Планы: этажи, генплан, паркинг и т.д.

Vladimir
Сообщения: 77
Зарегистрирован: 05 дек 2015 21:14
Реальное имя: Владимир
дом: 1
этаж: 18

Планы: этажи, генплан, паркинг и т.д.

Сообщение Vladimir » 06 дек 2015 00:19

В группе в WhatsApp Валентин выкладывал планы этажей. Публикую их здесь, чтобы не потерялись.
floor2-6.png
этажи со 2 по 6

floor7-22.png
этажи с 7 по 22

floor23.png
23 этаж



plan.zip
архив со всеми планами в PDF
(546.86 КБ) 6688 скачиваний

Neero
Сообщения: 46
Зарегистрирован: 06 дек 2015 12:51
Реальное имя: Валентин
дом: 2
этаж: 22
Контактная информация:

Генеральный план

Сообщение Neero » 07 дек 2015 13:57

Генеральный план.
Вложения
General_Plan.pdf
(2.58 МБ) 4501 скачивание
General_Plan.png
Кликните для увеличения.
Последний раз редактировалось Neero 22 дек 2015 13:08, всего редактировалось 4 раза.

Neero
Сообщения: 46
Зарегистрирован: 06 дек 2015 12:51
Реальное имя: Валентин
дом: 2
этаж: 22
Контактная информация:

План паркинга: Этаж -1

Сообщение Neero » 11 дек 2015 12:22

План паркинга: Этаж -1
Вложения
Parking-1.pdf
(1.05 МБ) 4070 скачиваний
Parking-1.png
Кликните для увеличения.
Последний раз редактировалось Neero 22 дек 2015 13:09, всего редактировалось 2 раза.

Neero
Сообщения: 46
Зарегистрирован: 06 дек 2015 12:51
Реальное имя: Валентин
дом: 2
этаж: 22
Контактная информация:

План паркинга: Этаж -2

Сообщение Neero » 11 дек 2015 12:23

План паркинга: Этаж -2
Вложения
Parking-2.pdf
(597.94 КБ) 4156 скачиваний
Parking-2.png
Кликните для увеличения.
Последний раз редактировалось Neero 22 дек 2015 13:17, всего редактировалось 1 раз.

Neero
Сообщения: 46
Зарегистрирован: 06 дек 2015 12:51
Реальное имя: Валентин
дом: 2
этаж: 22
Контактная информация:

ЖК "Золотой Рог" - Вид спереди

Сообщение Neero » 11 дек 2015 21:59

ЖК "Золотой Рог" - Вид спереди
Вложения
Zolotoy_Rog_Front.rar
(3.87 МБ) 4473 скачивания
Zolotoy_Rog_Front.png
Кликните для увеличения.

Vladimir
Сообщения: 77
Зарегистрирован: 05 дек 2015 21:14
Реальное имя: Владимир
дом: 1
этаж: 18

Фасады

Сообщение Vladimir » 28 дек 2015 23:48

Фасады-со-стеклом.png
Вложения
Фасады со стеклом.zip
(620.95 КБ) 4034 скачивания

DaryaKb90
Сообщения: 9
Зарегистрирован: 26 янв 2016 11:17
Реальное имя: Дарья
дом: 1
этаж: 20

Re: Планы: этажи, генплан, паркинг и т.д.

Сообщение DaryaKb90 » 26 янв 2016 12:59

План 1-го этажа
image.jpeg
image.jpeg (36.81 КБ) 321187 просмотров

Sergey
Сообщения: 7
Зарегистрирован: 10 янв 2016 20:48
Реальное имя: Сергей
дом: 1
этаж: 7

Re: Планы: этажи, генплан, паркинг и т.д.

Сообщение Sergey » 10 мар 2016 14:25

СТАТЬЯ про отопление...

Трубы отопления в полу или стандартная система по стоякам. Сравнительный анализ.
Данная статья будет полезна тем, кто собрался покупать новую квартиру и столкнулся с новой тенденцией в сфере отопления. Очень часто в новостройках стали уходить от традиционных стояков, подводящих теплоноситель (горячую воду) к батареям, и использовать прокладку пластиковых труб прямо в полу. Многих это решение отпугивает, так как неизвестно насколько это долговечно и практично. Ведь прямого доступа к трубам нет, проверить их состояние и вовремя заметить течь – тоже. Статья о преимуществах и недостатках такого решения.
Сразу начну с того, что отказ от стояков и разводка труб к радиаторампо полу – абсолютно оправдан и имеет целый ряд преимуществ. Бояться таких систем отопления не стоит. Во-первых, такое решение позволяет установить тепловой счетчик на отопление и платить за отопление не по нормативу, а по фактическому расходу. Например, когда в квартире становится жарко или когда вы уезжаете куда-то на пару недель, вы можете перекрыть отопление и не платить за него. У меня, например, бывали зимой месяцы, когда за январь или декабрь в квитке за отопление стояла сумма в сто рублей. При обычной системе отопления по стоякам, установить тепловой счетчик технически невозможно. Дело в том, что в случае с разводкой по полу, есть всего лишь один центральный стояк, который находится в подъезде, и от него лучами отопление расходится по квартирам. То есть отопление является поквартирным. На отводе от стояка и ставится тепловой счетчик. В случае же, когда у каждой батареи есть свой стояк, тепловой счетчик установить невозможно, так как стояков в квартире несколько и что более существенно, теплоноситель идет проточно с этажа на этаж, из-за чего невозможно подсчитать кол-во теплоносителя, потраченного на отопление конкретной квартиры. Отсюда вытекает и ещё один существенный плюс разводки труб отопления в полу – при необходимости вы или ваши соседи сверху (снизу) можете перекрыть отопление только своей квартиры в случае аварии или ремонта без ущерба для других. В то время как в стандартном варианте вам придется перекрывать весь стояк с первого по последний этаж. Причем, чтобы перекрыть стояк, придется уведомлять управляющую компанию (ЖЭК), в то время как с поквартирным отоплением в этом нет необходимости – достаточно выйти на лестничную клетку своего этажа и перекрыть кран.
Ещё одним существенным преимуществом системы является её ремонтопригодность. Срок службы труб из термостойкого пластика в два раза превышает срок службы обычных стандартных труб в стояках. В случае, когда необходима замена трубы, полы вскрывать не придется. Как раз именно этот момент многих и отпугивает. Срабатывает стереотип: если труба в полу – значит, рано или поздно придется этот пол разбивать, чтобы заменить поврежденный участок трубы. Вовсе нет. Все трубы, проходящие в полу, укладывают в специальном гофре (требование СНиП), благодаря чему замена поврежденной трубы происходит без вскрытия пола.
Также к преимуществам такой системы отопления можно отнести тот факт, что трубы, проходящие в полу, нагревают пол. Помимо горячих радиаторов, мы получаем теплые полы. Особенно прогрев ощущается, если в качестве напольного покрытия была использована напольная плитка (например, на кухне). Прогрев пола, конечно же, неравномерен - лишь там, где проходят трубы. Но ведь за эти «теплые полы» дополнительно доплачивать не придётся.
Ну и последним, наверное самым наглядным, преимуществом, будет то, что в квартире нет стояков, которые необходимо прятать или мириться с тем, что они будут портить внешний вид комнаты. Ведь в случае с напольной разводкой подающих и отводящих теплоноситель труб, мы имеем в комнате только сам радиатор, трубы от которого уходят в пол.
Единственным минусом системы является возможность её повреждения в ходе каких-то ремонтных работ. Необходимо достаточно осторожно сверлить пол. Конечно же, при устройстве напольного покрытия, будь то ламинат, плитка или ковролин – это и не потребуется. Но есть работы, связанные с устройством шкафов-купе, устройств дверных порогов, когда всё-таки возникает необходимость сверлить пол. Но, во-первых, трубы залегают на определенной глубине (не менее 4-5 см), во-вторых в управляющей компании можно попросить выдать вам схему разводки труб в полу, чтобы знать где именно эти трубы проходят (такие схемы там должны быть). Ну и в-третьих, в самом худшем случае, если вы всё же повредили трубу – её замена пройдет без вскрытия пола.
Также многие бояться, что труба, проложенная под полом, самопроизвольно может дать течь. Это практически исключено, так как перед заливкой пола в трубы подается вода под давлением в 12 атмосфер (рабочее давление в период отопительного сезона не превышает 6 атмосфер). И уже только после проверки труб на герметичность рабочие приступают к заливке пола. Другое дело, насколько качественно организация соблюдала технологию работ. В любом случае организация, проводившая работы, несёт ответственность и выполнять ремонт, если что, будет за свой счет.
На мой взгляд, преимущества напольной поквартирной системы отопления все же значительно перевешивают один единственный минус, который я описал чуть выше.


Вернуться в «Общий раздел»

Кто сейчас на конференции

Сейчас этот форум просматривают: нет зарегистрированных пользователей и 0 гостей