В группе в WhatsApp Валентин выкладывал планы этажей. Публикую их здесь, чтобы не потерялись.
Планы: этажи, генплан, паркинг и т.д.
-
Neero
- Сообщения: 46
- Зарегистрирован: 06 дек 2015 12:51
- Реальное имя: Валентин
- дом: 2
- этаж: 22
- Контактная информация:
Генеральный план
Генеральный план.
- Вложения
-
- General_Plan.pdf
- (2.58 МБ) 4500 скачиваний
Последний раз редактировалось Neero 22 дек 2015 13:08, всего редактировалось 4 раза.
-
Neero
- Сообщения: 46
- Зарегистрирован: 06 дек 2015 12:51
- Реальное имя: Валентин
- дом: 2
- этаж: 22
- Контактная информация:
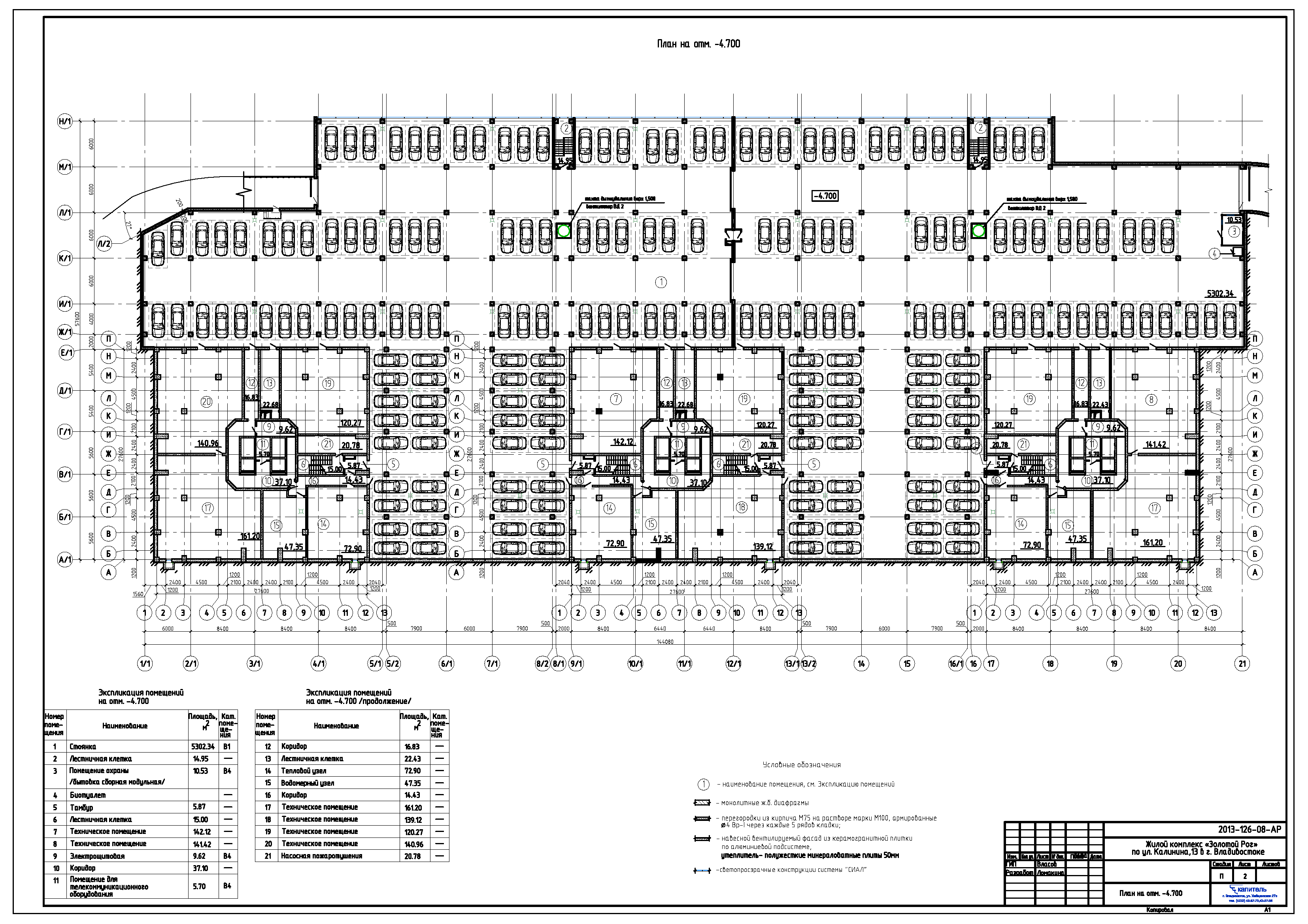
План паркинга: Этаж -1
План паркинга: Этаж -1
- Вложения
-
- Parking-1.pdf
- (1.05 МБ) 4069 скачиваний
Последний раз редактировалось Neero 22 дек 2015 13:09, всего редактировалось 2 раза.
-
Neero
- Сообщения: 46
- Зарегистрирован: 06 дек 2015 12:51
- Реальное имя: Валентин
- дом: 2
- этаж: 22
- Контактная информация:
План паркинга: Этаж -2
План паркинга: Этаж -2
- Вложения
-
- Parking-2.pdf
- (597.94 КБ) 4155 скачиваний
Последний раз редактировалось Neero 22 дек 2015 13:17, всего редактировалось 1 раз.
-
Neero
- Сообщения: 46
- Зарегистрирован: 06 дек 2015 12:51
- Реальное имя: Валентин
- дом: 2
- этаж: 22
- Контактная информация:
ЖК "Золотой Рог" - Вид спереди
ЖК "Золотой Рог" - Вид спереди
- Вложения
-
- Zolotoy_Rog_Front.rar
- (3.87 МБ) 4473 скачивания
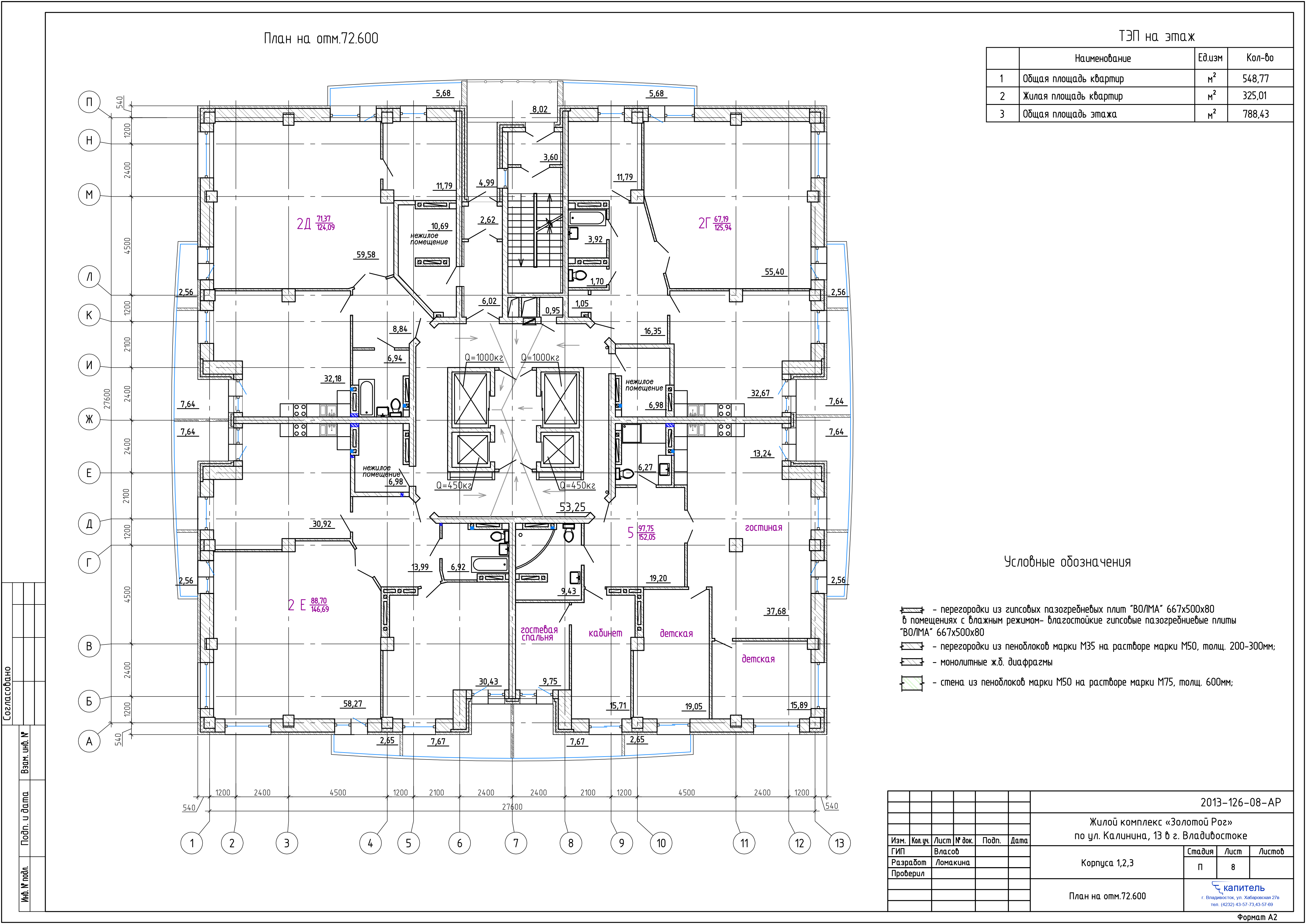
Re: Планы: этажи, генплан, паркинг и т.д.
План 1-го этажа
Re: Планы: этажи, генплан, паркинг и т.д.
СТАТЬЯ про отопление...
Трубы отопления в полу или стандартная система по стоякам. Сравнительный анализ.
Данная статья будет полезна тем, кто собрался покупать новую квартиру и столкнулся с новой тенденцией в сфере отопления. Очень часто в новостройках стали уходить от традиционных стояков, подводящих теплоноситель (горячую воду) к батареям, и использовать прокладку пластиковых труб прямо в полу. Многих это решение отпугивает, так как неизвестно насколько это долговечно и практично. Ведь прямого доступа к трубам нет, проверить их состояние и вовремя заметить течь – тоже. Статья о преимуществах и недостатках такого решения.
Сразу начну с того, что отказ от стояков и разводка труб к радиаторампо полу – абсолютно оправдан и имеет целый ряд преимуществ. Бояться таких систем отопления не стоит. Во-первых, такое решение позволяет установить тепловой счетчик на отопление и платить за отопление не по нормативу, а по фактическому расходу. Например, когда в квартире становится жарко или когда вы уезжаете куда-то на пару недель, вы можете перекрыть отопление и не платить за него. У меня, например, бывали зимой месяцы, когда за январь или декабрь в квитке за отопление стояла сумма в сто рублей. При обычной системе отопления по стоякам, установить тепловой счетчик технически невозможно. Дело в том, что в случае с разводкой по полу, есть всего лишь один центральный стояк, который находится в подъезде, и от него лучами отопление расходится по квартирам. То есть отопление является поквартирным. На отводе от стояка и ставится тепловой счетчик. В случае же, когда у каждой батареи есть свой стояк, тепловой счетчик установить невозможно, так как стояков в квартире несколько и что более существенно, теплоноситель идет проточно с этажа на этаж, из-за чего невозможно подсчитать кол-во теплоносителя, потраченного на отопление конкретной квартиры. Отсюда вытекает и ещё один существенный плюс разводки труб отопления в полу – при необходимости вы или ваши соседи сверху (снизу) можете перекрыть отопление только своей квартиры в случае аварии или ремонта без ущерба для других. В то время как в стандартном варианте вам придется перекрывать весь стояк с первого по последний этаж. Причем, чтобы перекрыть стояк, придется уведомлять управляющую компанию (ЖЭК), в то время как с поквартирным отоплением в этом нет необходимости – достаточно выйти на лестничную клетку своего этажа и перекрыть кран.
Ещё одним существенным преимуществом системы является её ремонтопригодность. Срок службы труб из термостойкого пластика в два раза превышает срок службы обычных стандартных труб в стояках. В случае, когда необходима замена трубы, полы вскрывать не придется. Как раз именно этот момент многих и отпугивает. Срабатывает стереотип: если труба в полу – значит, рано или поздно придется этот пол разбивать, чтобы заменить поврежденный участок трубы. Вовсе нет. Все трубы, проходящие в полу, укладывают в специальном гофре (требование СНиП), благодаря чему замена поврежденной трубы происходит без вскрытия пола.
Также к преимуществам такой системы отопления можно отнести тот факт, что трубы, проходящие в полу, нагревают пол. Помимо горячих радиаторов, мы получаем теплые полы. Особенно прогрев ощущается, если в качестве напольного покрытия была использована напольная плитка (например, на кухне). Прогрев пола, конечно же, неравномерен - лишь там, где проходят трубы. Но ведь за эти «теплые полы» дополнительно доплачивать не придётся.
Ну и последним, наверное самым наглядным, преимуществом, будет то, что в квартире нет стояков, которые необходимо прятать или мириться с тем, что они будут портить внешний вид комнаты. Ведь в случае с напольной разводкой подающих и отводящих теплоноситель труб, мы имеем в комнате только сам радиатор, трубы от которого уходят в пол.
Единственным минусом системы является возможность её повреждения в ходе каких-то ремонтных работ. Необходимо достаточно осторожно сверлить пол. Конечно же, при устройстве напольного покрытия, будь то ламинат, плитка или ковролин – это и не потребуется. Но есть работы, связанные с устройством шкафов-купе, устройств дверных порогов, когда всё-таки возникает необходимость сверлить пол. Но, во-первых, трубы залегают на определенной глубине (не менее 4-5 см), во-вторых в управляющей компании можно попросить выдать вам схему разводки труб в полу, чтобы знать где именно эти трубы проходят (такие схемы там должны быть). Ну и в-третьих, в самом худшем случае, если вы всё же повредили трубу – её замена пройдет без вскрытия пола.
Также многие бояться, что труба, проложенная под полом, самопроизвольно может дать течь. Это практически исключено, так как перед заливкой пола в трубы подается вода под давлением в 12 атмосфер (рабочее давление в период отопительного сезона не превышает 6 атмосфер). И уже только после проверки труб на герметичность рабочие приступают к заливке пола. Другое дело, насколько качественно организация соблюдала технологию работ. В любом случае организация, проводившая работы, несёт ответственность и выполнять ремонт, если что, будет за свой счет.
На мой взгляд, преимущества напольной поквартирной системы отопления все же значительно перевешивают один единственный минус, который я описал чуть выше.
Трубы отопления в полу или стандартная система по стоякам. Сравнительный анализ.
Данная статья будет полезна тем, кто собрался покупать новую квартиру и столкнулся с новой тенденцией в сфере отопления. Очень часто в новостройках стали уходить от традиционных стояков, подводящих теплоноситель (горячую воду) к батареям, и использовать прокладку пластиковых труб прямо в полу. Многих это решение отпугивает, так как неизвестно насколько это долговечно и практично. Ведь прямого доступа к трубам нет, проверить их состояние и вовремя заметить течь – тоже. Статья о преимуществах и недостатках такого решения.
Сразу начну с того, что отказ от стояков и разводка труб к радиаторампо полу – абсолютно оправдан и имеет целый ряд преимуществ. Бояться таких систем отопления не стоит. Во-первых, такое решение позволяет установить тепловой счетчик на отопление и платить за отопление не по нормативу, а по фактическому расходу. Например, когда в квартире становится жарко или когда вы уезжаете куда-то на пару недель, вы можете перекрыть отопление и не платить за него. У меня, например, бывали зимой месяцы, когда за январь или декабрь в квитке за отопление стояла сумма в сто рублей. При обычной системе отопления по стоякам, установить тепловой счетчик технически невозможно. Дело в том, что в случае с разводкой по полу, есть всего лишь один центральный стояк, который находится в подъезде, и от него лучами отопление расходится по квартирам. То есть отопление является поквартирным. На отводе от стояка и ставится тепловой счетчик. В случае же, когда у каждой батареи есть свой стояк, тепловой счетчик установить невозможно, так как стояков в квартире несколько и что более существенно, теплоноситель идет проточно с этажа на этаж, из-за чего невозможно подсчитать кол-во теплоносителя, потраченного на отопление конкретной квартиры. Отсюда вытекает и ещё один существенный плюс разводки труб отопления в полу – при необходимости вы или ваши соседи сверху (снизу) можете перекрыть отопление только своей квартиры в случае аварии или ремонта без ущерба для других. В то время как в стандартном варианте вам придется перекрывать весь стояк с первого по последний этаж. Причем, чтобы перекрыть стояк, придется уведомлять управляющую компанию (ЖЭК), в то время как с поквартирным отоплением в этом нет необходимости – достаточно выйти на лестничную клетку своего этажа и перекрыть кран.
Ещё одним существенным преимуществом системы является её ремонтопригодность. Срок службы труб из термостойкого пластика в два раза превышает срок службы обычных стандартных труб в стояках. В случае, когда необходима замена трубы, полы вскрывать не придется. Как раз именно этот момент многих и отпугивает. Срабатывает стереотип: если труба в полу – значит, рано или поздно придется этот пол разбивать, чтобы заменить поврежденный участок трубы. Вовсе нет. Все трубы, проходящие в полу, укладывают в специальном гофре (требование СНиП), благодаря чему замена поврежденной трубы происходит без вскрытия пола.
Также к преимуществам такой системы отопления можно отнести тот факт, что трубы, проходящие в полу, нагревают пол. Помимо горячих радиаторов, мы получаем теплые полы. Особенно прогрев ощущается, если в качестве напольного покрытия была использована напольная плитка (например, на кухне). Прогрев пола, конечно же, неравномерен - лишь там, где проходят трубы. Но ведь за эти «теплые полы» дополнительно доплачивать не придётся.
Ну и последним, наверное самым наглядным, преимуществом, будет то, что в квартире нет стояков, которые необходимо прятать или мириться с тем, что они будут портить внешний вид комнаты. Ведь в случае с напольной разводкой подающих и отводящих теплоноситель труб, мы имеем в комнате только сам радиатор, трубы от которого уходят в пол.
Единственным минусом системы является возможность её повреждения в ходе каких-то ремонтных работ. Необходимо достаточно осторожно сверлить пол. Конечно же, при устройстве напольного покрытия, будь то ламинат, плитка или ковролин – это и не потребуется. Но есть работы, связанные с устройством шкафов-купе, устройств дверных порогов, когда всё-таки возникает необходимость сверлить пол. Но, во-первых, трубы залегают на определенной глубине (не менее 4-5 см), во-вторых в управляющей компании можно попросить выдать вам схему разводки труб в полу, чтобы знать где именно эти трубы проходят (такие схемы там должны быть). Ну и в-третьих, в самом худшем случае, если вы всё же повредили трубу – её замена пройдет без вскрытия пола.
Также многие бояться, что труба, проложенная под полом, самопроизвольно может дать течь. Это практически исключено, так как перед заливкой пола в трубы подается вода под давлением в 12 атмосфер (рабочее давление в период отопительного сезона не превышает 6 атмосфер). И уже только после проверки труб на герметичность рабочие приступают к заливке пола. Другое дело, насколько качественно организация соблюдала технологию работ. В любом случае организация, проводившая работы, несёт ответственность и выполнять ремонт, если что, будет за свой счет.
На мой взгляд, преимущества напольной поквартирной системы отопления все же значительно перевешивают один единственный минус, который я описал чуть выше.
Кто сейчас на конференции
Сейчас этот форум просматривают: нет зарегистрированных пользователей и 1 гость