Создаю тему для обладателей квартир 1В - Юго-Восточной стороны.
Здесь можно выкладывать свои варианты планировок/перепланировок, идеи и решения по дизайну, оптимизации использования полезной площади.
Размещаю два базовых плана:
- План с рекомендованной застройщиком планировкой.
- План без стен, которые официально отсутствуют.
Планировка / Перепланировка квартиры 1В - Юго-Восток
-
- Сообщения: 46
- Зарегистрирован: 06 дек 2015 12:51
- Реальное имя: Валентин
- дом: 2
- этаж: 22
- Контактная информация:
Планировка / Перепланировка квартиры 1В - Юго-Восток
- Вложения
-
- План с рекомендованной застройщиком планировкой.
- BaseX1.jpg (109.58 КБ) 82035 просмотров
-
- План без стен, которые официально отсутствуют.
- BaseX2.jpg (80.08 КБ) 82035 просмотров
Последний раз редактировалось Neero 13 дек 2015 19:59, всего редактировалось 1 раз.
-
- Сообщения: 13
- Зарегистрирован: 11 дек 2015 13:40
- Реальное имя: Мария
- дом: 1
- этаж: 10
Re: Планировка / Перепланировка квартиры 1B - Юго-Восток
А по 2в будет тема?
-
- Сообщения: 13
- Зарегистрирован: 11 дек 2015 13:40
- Реальное имя: Мария
- дом: 1
- этаж: 10
Re: Планировка / Перепланировка квартиры 1B - Юго-Восток
А по 2в будет тема?
-
- Сообщения: 46
- Зарегистрирован: 06 дек 2015 12:51
- Реальное имя: Валентин
- дом: 2
- этаж: 22
- Контактная информация:
Re: Планировка / Перепланировка квартиры 1B - Юго-Восток
Да. Будут по всем квартирам.
-
- Сообщения: 26
- Зарегистрирован: 28 янв 2016 23:51
- Реальное имя: Elena
- дом: 1
- этаж: 11
- Контактная информация:
Re: Планировка / Перепланировка квартиры 1В - Юго-Восток
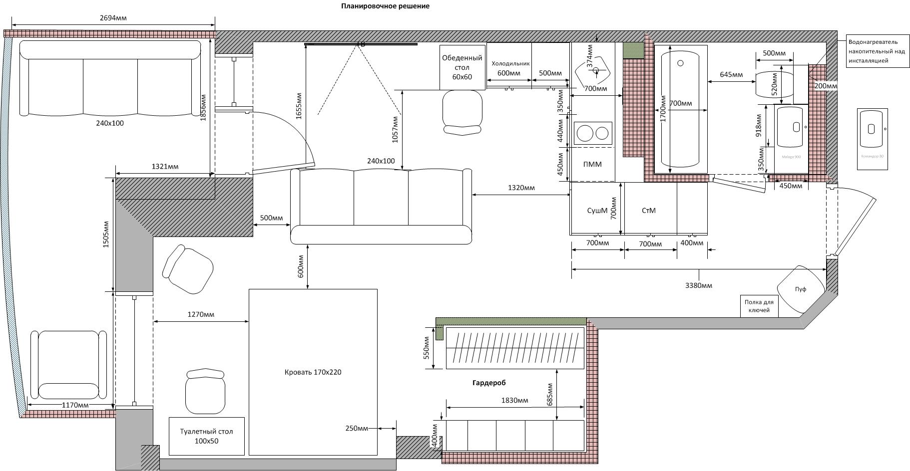
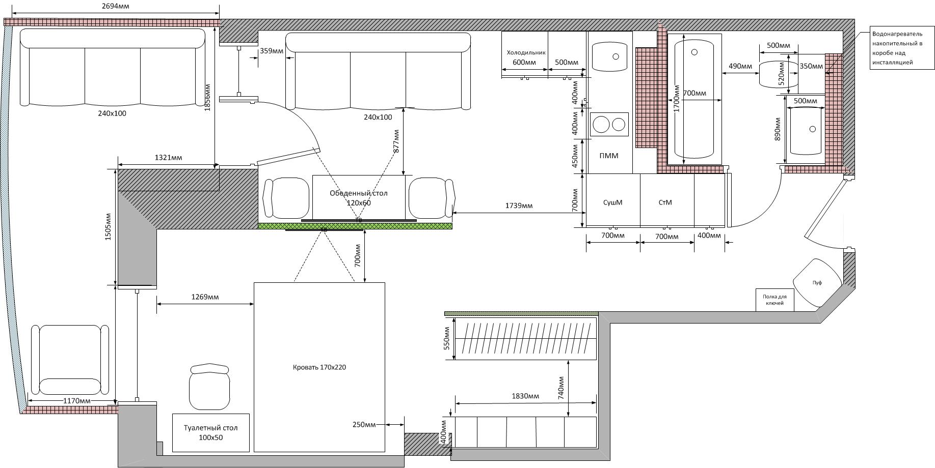
Может кому пригодятся варианты:
Re: Планировка / Перепланировка квартиры 1В - Юго-Восток
Последняя планировка зачотная. С небольшими доработками (объединяем стиралку и сушилку на месте стиралки, холодильник переносим на место сушилки, добавляем дверь в комнату, кровать сдвигаем вплотную к колонне, вместо туалетного столика компьютерный Г-образный бОльшего размера, гардеробную делаем за сдвижными дверями) я бы даже мог бы рассмотреть для себя. Впервые из всех опубликованных на форуме.
Но после рассмотрения всё равно бы оставил свою
Но после рассмотрения всё равно бы оставил свою

-
- Сообщения: 26
- Зарегистрирован: 28 янв 2016 23:51
- Реальное имя: Elena
- дом: 1
- этаж: 11
- Контактная информация:
Re: Планировка / Перепланировка квартиры 1В - Юго-Восток
Владимир, спасибо за комментарии ))) надеюсь мои идеи вдохновят кого-то еще ) если интересно могу выложить развертку кухни\прихожей
-
- Сообщения: 26
- Зарегистрирован: 28 янв 2016 23:51
- Реальное имя: Elena
- дом: 1
- этаж: 11
- Контактная информация:
Re: Планировка / Перепланировка квартиры 1В - Юго-Восток
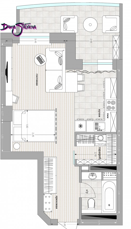
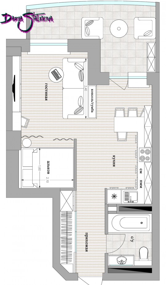
Всем здравствуйте, выложу еще несколько вариантов планировок, предложенных мне любителями и профи на одном строительном портале, думаю кому-то пригодятся идеи или послужат толчком для своего варианта. Почитать комментарии можно здесь http://ideas.vdolevke.ru/qa/question/pr ... sta-11487/ и здесь http://ideas.vdolevke.ru/posts/33327/pl ... ent-550972
Re: Планировка / Перепланировка квартиры 1В - Юго-Восток
11юв095 писал(а):Владимир, спасибо за комментарии ))) надеюсь мои идеи вдохновят кого-то еще ) если интересно могу выложить развертку кухни\прихожей
Развёртка - это уже для строителей. Здесь она мало кому нужна.
Но можно выкладывать всё. Вдруг кому и пригодится.
Re: Планировка / Перепланировка квартиры 1В - Юго-Восток
Примерно так буду я делать.
Возможно дверь на балкон вынесем в детскую, а в ванной поставим угловую ванну.
Возможно дверь на балкон вынесем в детскую, а в ванной поставим угловую ванну.

- Вложения
-
- Примерная планировка.jpg (55.63 КБ) 80642 просмотра
Кто сейчас на конференции
Сейчас этот форум просматривают: нет зарегистрированных пользователей и 1 гость