Vladimir, Etty,
Варианты планировки:
варианты 1 и 2 были отклонены в связи с проблемами узаконивания переноса мокрых зон в жилые зоны (((
варианты промежуточный и окончательный (на сегодня ))) основаны на Стороннем варианте (взят здесь: http://syndyk.by/photoreportage/interer ... 23478.html)
Планировка / Перепланировка квартиры 1А - Запад
-
- Сообщения: 26
- Зарегистрирован: 28 янв 2016 23:51
- Реальное имя: Elena
- дом: 1
- этаж: 11
- Контактная информация:
Re: Планировка / Перепланировка квартиры 1А - Запад
- Вложения
-
- Вариант 3
- Вариант 3.png (375.19 КБ) 112146 просмотров
-
- Вариант 2
- Вариант 2.png (363.69 КБ) 112146 просмотров
-
- Вариант 1
- вариант 1.png (376.59 КБ) 112146 просмотров
Последний раз редактировалось 11юв095 04 фев 2016 15:09, всего редактировалось 1 раз.
Re: Планировка / Перепланировка квартиры 1А - Запад
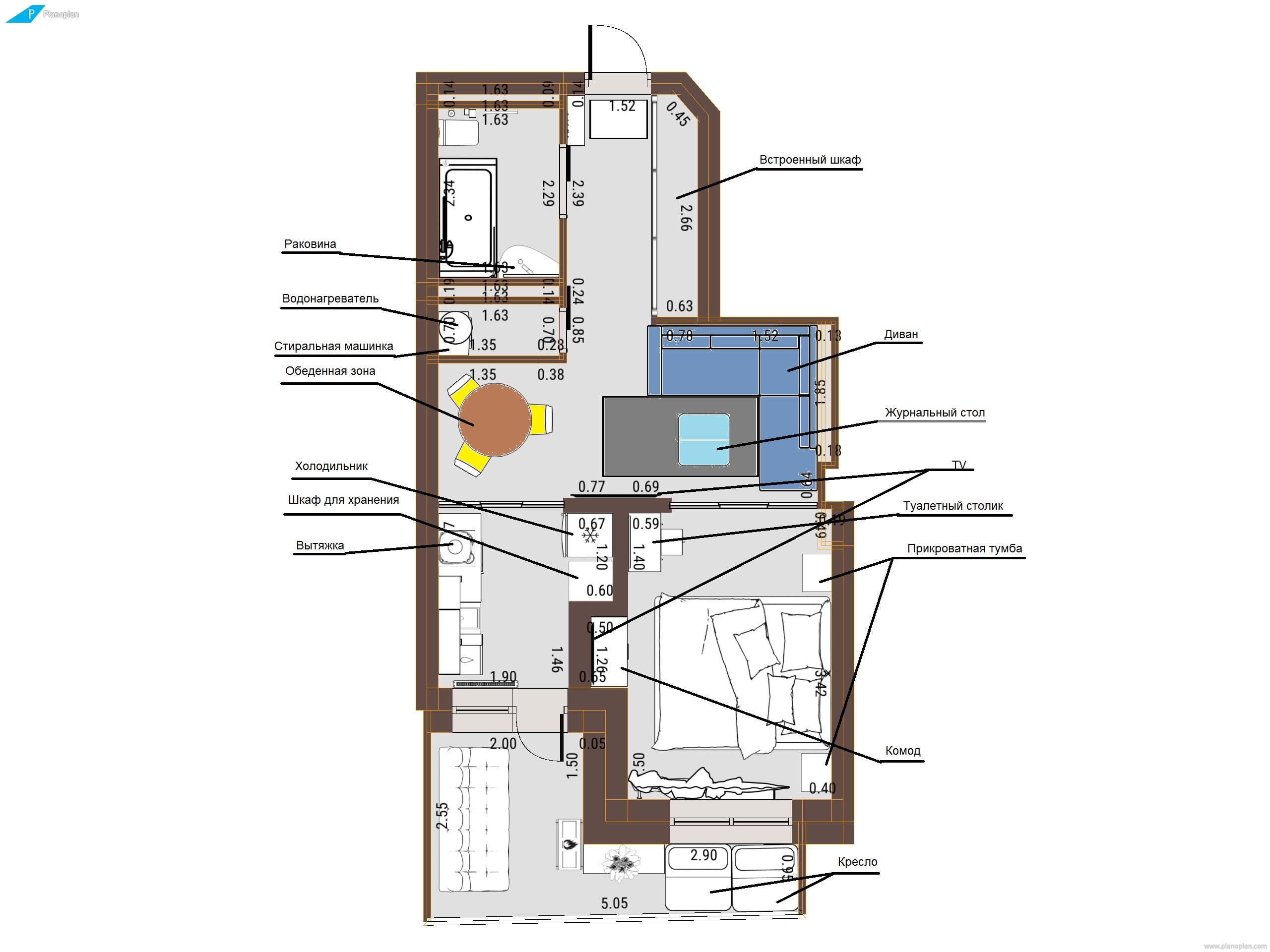
Окончательный вариант самый верхний?
Не всё в нём понимаю. Какие-то обозначения не интуитивно понятные.
Что расположено "выше" спальни? Какой-то набор примкнутых друг к другу прямоугольников. А левее этого набора круглый стол с тремя стульями?
А вообще, какая цель формулировалась перед дизайнером? Что пытались получить от планировки? Уж больно нестандартный вариант вырисовывается, не просто же так он возник.
У меня общее впечатление - квартира будет очень тесная и заставленная, буквально шага нельзя ступить. У меня примерно так было, когда жил в махонькой гостинке.
Не всё в нём понимаю. Какие-то обозначения не интуитивно понятные.
Что расположено "выше" спальни? Какой-то набор примкнутых друг к другу прямоугольников. А левее этого набора круглый стол с тремя стульями?
А вообще, какая цель формулировалась перед дизайнером? Что пытались получить от планировки? Уж больно нестандартный вариант вырисовывается, не просто же так он возник.
У меня общее впечатление - квартира будет очень тесная и заставленная, буквально шага нельзя ступить. У меня примерно так было, когда жил в махонькой гостинке.
-
- Сообщения: 26
- Зарегистрирован: 28 янв 2016 23:51
- Реальное имя: Elena
- дом: 1
- этаж: 11
- Контактная информация:
Re: Планировка / Перепланировка квартиры 1А - Запад
Vladimir писал(а):Окончательный вариант самый верхний?
Не всё в нём понимаю. Какие-то обозначения не интуитивно понятные.
Что расположено "выше" спальни? Какой-то набор примкнутых друг к другу прямоугольников. А левее этого набора круглый стол с тремя стульями?
А вообще, какая цель формулировалась перед дизайнером? Что пытались получить от планировки? Уж больно нестандартный вариант вырисовывается, не просто же так он возник.
У меня общее впечатление - квартира будет очень тесная и заставленная, буквально шага нельзя ступить. У меня примерно так было, когда жил в махонькой гостинке.
Vladimir, да самый верхний - окончательный (пока - девушки такие непостоянные

Изменила рисунок, может так будет понятнее )
Эти планы рисовала сама, цель, собственно говоря иметь отдельное спальное место, минимальную кухню и максимально комфортное для отдыха пространство, т.е. большой диван в гостиной, на балконе - диван и пара кресел (формирующие как бы лежанку, или может будут поменьше, обычные)
теснота меня как раз таки не смущает (будет еще многое зависеть от габаритов мебели, я брала немаленькие, так что есть куда подвинуться)
Re: Планировка / Перепланировка квартиры 1А - Запад
У меня по планировке сложилось впечатление, что в квартире будут часто проходить встречи с малознакомыми людьми и необходимо тщательно изолировать личное пространство от публичного. Такое характерно для всяких сект и распространителей продукции 
В спальню обязательно нужен какой-то шкаф. За платьями-халатами будете в прихожую бегать?
А теснота... Ну обеденная зона за круглым столиком хоть и нарисована на 3 стула, но по факту третий в угол не протиснется.
Кресла на балконе - не представляю, как их там 2 станет рядом. Если только запланировать вырезы в окнах и ноги в эти вырезы высовывать
Представьте выход из комнаты спросонья человека, спящего ближе в окну. Сначала ему надо будет протиснуться в проход между кроватью и стеной/комодом (по моим прикидкам там сантиметров 40, максимум 50), потом вовремя притормозить, чтобы не снести
туалетный столик. Рано или поздно снесёт
И хорошенько всё же подумайте по поводу сдвижных дверей. Да, они вроде как красивые, да, они вроде требуют меньше места при открывании, но с надёжностью у них не всё хорошо. Если они будут накладными на стену, то ремонтировать достаточно просто, но тогда с шумоизоляцией полный ахтунг. Если бы будут вмонтированные в стену, то шумоизоляция получше, а вот для ремонта придётся крушить стену, что вряд ли порадует.

В спальню обязательно нужен какой-то шкаф. За платьями-халатами будете в прихожую бегать?
А теснота... Ну обеденная зона за круглым столиком хоть и нарисована на 3 стула, но по факту третий в угол не протиснется.
Кресла на балконе - не представляю, как их там 2 станет рядом. Если только запланировать вырезы в окнах и ноги в эти вырезы высовывать

Представьте выход из комнаты спросонья человека, спящего ближе в окну. Сначала ему надо будет протиснуться в проход между кроватью и стеной/комодом (по моим прикидкам там сантиметров 40, максимум 50), потом вовремя притормозить, чтобы не снести
туалетный столик. Рано или поздно снесёт

И хорошенько всё же подумайте по поводу сдвижных дверей. Да, они вроде как красивые, да, они вроде требуют меньше места при открывании, но с надёжностью у них не всё хорошо. Если они будут накладными на стену, то ремонтировать достаточно просто, но тогда с шумоизоляцией полный ахтунг. Если бы будут вмонтированные в стену, то шумоизоляция получше, а вот для ремонта придётся крушить стену, что вряд ли порадует.
Re: Планировка / Перепланировка квартиры 1А - Запад
Vladimir, мы с мужем тоже приобрели однокомнатную квартиру на западной стороне, ниже вашего этажа. Нам планировка 11юв095 очень даже понравилась, спасибо ей за хорошую идею, и мы хотим остановиться на таком же варианте. И если у вас сложилось "такое" впечатление о данной планировке, и вы, видимо, имели опыт сталкивания с подобного рода организациями (квартиры для встреч с малознакомыми людьми, секты и места для распространения продукции), то это ваши сугубо личные обстоятельства. На этом форуме дольщики делятся своими идеями, советуются с будущими соседями и ждут поддержки добрым словом!
Re: Планировка / Перепланировка квартиры 1А - Запад
Анна, что же вы так остро реагируете на шутку? Тяжело вам будет в инете общаться, если столь близко к сердцу каждую реплику будете воспринимать.
-
- Сообщения: 26
- Зарегистрирован: 28 янв 2016 23:51
- Реальное имя: Elena
- дом: 1
- этаж: 11
- Контактная информация:
Re: Планировка / Перепланировка квартиры 1А - Запад
Vladimir писал(а):У меня по планировке сложилось впечатление, что в квартире будут часто проходить встречи с малознакомыми людьми и необходимо тщательно изолировать личное пространство от публичного. Такое характерно для всяких сект и распространителей продукции
Vladimir, если бы мне нужно было тщательно отгородить спальное место от посторонних глаз - это была бы не стеклянная раздвижная перегородка, а нормальная стенаПо поводу секты - есть доля истины: называется моя большая дружная и очень шумная семья, которая любит устраивать набеги ко мне в гости)))
В спальню обязательно нужен какой-то шкаф. За платьями-халатами будете в прихожую бегать?
В спальню я даже комод для белья ставить не хотелазачем бегать? - ходить )) не такая уж и большая площадь )) у меня и сейчас один шкаф на 32 квадрата, и в коридоре вполне удобно - вышел из ванны, открыл шкаф, оделся )) но это я так привыкла )
А теснота... Ну обеденная зона за круглым столиком хоть и нарисована на 3 стула, но по факту третий в угол не протиснется.
Кресла на балконе - не представляю, как их там 2 станет рядом. Если только запланировать вырезы в окнах и ноги в эти вырезы высовывать
Представьте выход из комнаты спросонья человека, спящего ближе в окну. Сначала ему надо будет протиснуться в проход между кроватью и стеной/комодом (по моим прикидкам там сантиметров 40, максимум 50), потом вовремя притормозить, чтобы не снести
туалетный столик. Рано или поздно снесёт
Ну я то квартирку для себя обставляю, а не для кого-тоа с моими 50-ю кг на 170 см роста - проход в пол метра - вполне достаточен ))) А толстым людям в мое спальне вообще нечего делать!
![]()
И хорошенько всё же подумайте по поводу сдвижных дверей. Да, они вроде как красивые, да, они вроде требуют меньше места при открывании, но с надёжностью у них не всё хорошо. Если они будут накладными на стену, то ремонтировать достаточно просто, но тогда с шумоизоляцией полный ахтунг. Если бы будут вмонтированные в стену, то шумоизоляция получше, а вот для ремонта придётся крушить стену, что вряд ли порадует.
Спасибо за совет, я обязательно много подумаю и взвешу все за и против )
Re: Планировка / Перепланировка квартиры 1А - Запад
Фотоотчёт Сергея посчитал достойным новой темы. Перенёс вот сюда: viewtopic.php?f=1&t=47
Кто сейчас на конференции
Сейчас этот форум просматривают: нет зарегистрированных пользователей и 1 гость